York Street, Canton CF5 1NE Guide Price £235,000

2 Bedroom Apartment  For Sale

Beautifully presented first-floor apartment in the heart of Canton

Bright and spacious lounge/dining room with bay window

Modern, well-designed kitchen with contemporary fittings

Two well-proportioned bedrooms offering comfortable living

Stylish shower room with walk-in shower and unique stone basin

Light-filled interior with generous proportions throughout

Located near Cowbridge Road East s cafés, shops and restaurants

Easy access to Cardiff city centre and excellent transport link

Tax band C

EPC C

EPC Rating C

This beautifully presented first floor apartment offers bright, well proportioned living on York Street in the heart of Canton.

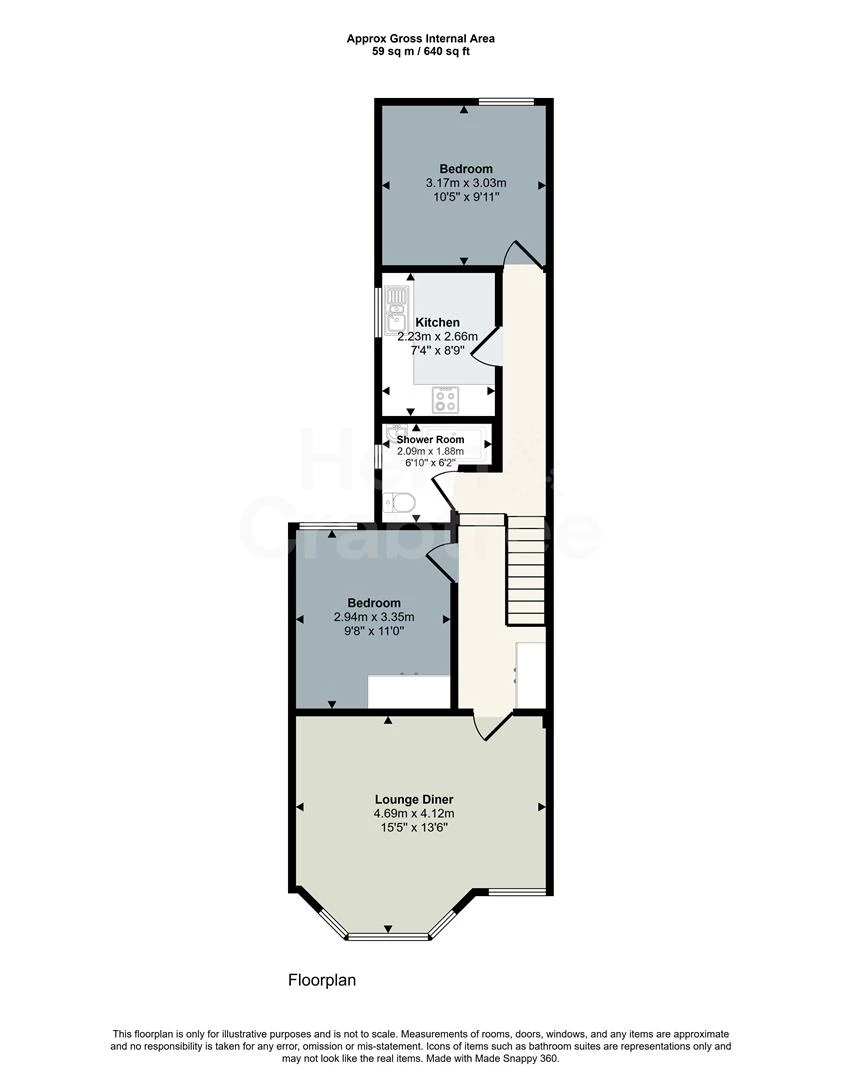
Accessed via a communal entrance, the property opens into a bright and well balanced interior, thoughtfully arranged to make the most of its natural light and generous proportions. At the front of the apartment, a spacious lounge and dining room is framed by a wide bay window, creating an inviting setting for both everyday living and relaxed entertaining. The kitchen is modern and well planned, offering a practical layout with contemporary fittings.

Two good sized bedrooms provide calm and comfortable accommodation, while the shower room has been finished with a refined touch, featuring a walk in shower and a distinctive freestanding stone wash hand basin.

York Street sits within the ever popular district of Canton, an area long celebrated for its independent spirit and lively cultural scene. Just a short walk away, Cowbridge Road East offers an excellent selection of independent cafés, restaurants, delicatessens and boutique shops, while nearby green spaces and riverside walks provide welcome balance to city life. Cardiff city centre is within easy reach, whether on foot, by bicycle or via excellent public transport connections, making this location particularly appealing for professionals and those seeking convenient urban living.

Entrance

Enter from the communal hallway. Stairs rise up. Wooden handrail.

Hallway

Bannister with wooden handrail and spindles. Split level landing. Radiator. Loft access hatch.

Lounge/Diner

Double glazed bay and half window to the front elevation. Radiator.

Kitchen

Double glazed window to the side elevation. Base units with worktops over. One bowl sink and drainer with mixer tap. Integrated four ring electric hob with tiled splashback and cooker hood over. Integrated dishwasher. Integrated oven. Plumbing for washing machine. Space for fridge freezer. Concealed gas combination boiler.

Bedroom One

Double glazed window to the rear elevation. Radiator.

Bedroom Two

Double glazed window to the rear elevation. Radiator.

Shower Room

Double glazed window to the side elevation. W/C. Stone freestanding wash hand basin. Shower quadrant with fitted shower over and glass sliding doors. Part tiled walls. Vinyl flooring. Heated towel rail.

Tenure

Share of the freehold. 125 years from 2018 with 117 years remaining. Shared maintenance costs.

Additional Information

Council Tax Band C (Cardiff). EPC rating C.

Disclaimer

Property details are provided by the seller and not independently verified. Buyers should seek their own legal and survey advice. Descriptions, measurements and images are for guidance only. Marketing prices are appraisals, not formal valuations. Hern & Crabtree accepts no liability for inaccuracies or related decisions.
Please note: Buyers are required to pay a non-refundable AML administration fee of £24 inc vat, per buyer after their offer is accepted to proceed with the sale. Details can be found on our website.

Local Schools

Location

Floor Plan

York Street.jpg

Property Images

York-Street-4.jpg
York-Street-17.jpg
York-Street-19.jpg
York-Street-18.jpg
York-Street-24.jpg
York-Street-11.jpg
York-Street-12.jpg
York-Street-6.jpg
York-Street-7.jpg
York-Street-10.jpg
York-Street-16.jpg
York-Street-22.jpg
York-Street-9.jpg
York-Street-15.jpg
York-Street-20.jpg
York-Street-21.jpg
York-Street-23.jpg
York-Street-8.jpg
York-Street-3.jpg
York-Street-5.jpg

Arrange a Viewing

Arrange a Viewing

Mortgage Calculator

Mortgage Details

Results

Book a mortgage appointment

Booking an appointment with one of our fully qualified Mortgage Advisers has never been easier. We help first time buyers, home movers, remortgaging and existing property, switching to a new deal and applying to borrow more.

Book Now

Stamp duty calculation

See full breakdown

Total LTT due

Below is a breakdown of how the total amount of LTT was calculated

Up to £0k (Percentage rate 0 %)

Above £0k and up to £0k (Percentage rate 0 %)

Above £0k and up to £0k (Percentage rate 0 %)

Above £0k and up to £0k (Percentage rate 0 %)

Above £0k and up to £0m (Percentage rate 0 %)

Above £om (Percentage rate 0 %)

Please note: This is for illustrative purposes only. The above calculator should not be relied upon when making financial decisions. Please seek advice from a specialist financial provider.

IMPORTANT NOTICE FROM HERN & CRABTREE

Property details (including title, lease, and all associated costs) are provided by the seller and are not legally verified by us. While we aim for accuracy, we recommend verifying all information independently with your legal representatives, including any inspections, before contract exchange. Photographs, measurements and descriptions are provided as a guide and in good faith but may not fully represent the property. We do not test services, systems, or appliances. Marketing figures are appraisals, not valuations, and may differ from surveyor assessments. We are not liable for any discrepancies in value, for any costs and/or any financial losses associated with purchasing or selling a property regardless of the reason for the transaction not proceeding. By proceeding, you confirm your understanding of these terms.

FREE Instant Online Valuation

Finding your dream home across Cardiff and beyond

Get in touch

Fees

Refundable Holding deposit - Capped at 1 weeks rent

Security Deposit - Capped at 5 weeks rent for annual rental under £50,000, or 6 weeks rent for annual rental over £50,000

Rent - The agreed monthly rent

Changes to tenancy - Capped at £100 inc VAT

Early termination charge - Not exceeding the landlord’s financial losses

Late payment of rent - Interest of 3% above BoE base rate for each day the rent is late, once it is 14 days overdue

Replacement keys - Reasonable costs or give the tenant the option to purchase themselves

Utilities, council tax, communication services, TV Licence etc - Tenants own responsibility unless otherwise stated in contract